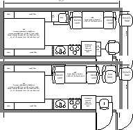
Strata & Mike's Bus Stuff: Floor Plans Page 1


Page 1